联系人:汪经理
手机: 159 6894 7894
电话: 0574-8749 8326
传真:0574-8907 3797
邮箱: chinanbdshb@163.com
地址: 浙江省 宁波市 北仑区 小港工业园 创富路69号
网址:www.chinadshb.com

我公司德胜环保工程电量小,产水率高,运行成本极低,具有良好的技术经济性等等。
DS型一体化净水设备是我公司为响应浙江省政府、省水利厅解决千万农民饮用水工程的号召,并结合山区城镇、农村供水工程的实际情况,开发的一系列自来水净化设备,该装置可采用PLC全自动控制(用户自选),主体为常压式敞口箱体,可以有效利用山区水库水静压及水泵提升的剩余扬程完成混合、混凝反应、沉淀、过滤、反冲等净化过程,有效地节约能源并减少基建设备投资。
DS型一体化净水设备非常适合中小型山区自来水工程,单套设备供水规模为单套设备5~250m3/h,日供水量可达600~5000m3/d,可满足城镇农村自来水供应,并且可根据客户单位需要,采用两组或两组以上并联增加供水规模。DS型一体化净水设备将混凝反应、过滤、反冲等自来水净化所需的各个工艺综合到一套设备平台上,占地面积小,操作管理方便。
该设备主要去除水中的固体悬浮物,由此降低出水浊度指标,并结合消毒剂消毒作用使设备净化出水达到国家《生活饮用水卫生标准》GB5749-2006的要求;
该设备采用专利设计,优化配置,精简操作流程,我公司本着一切为用户着想的宗旨,为城镇农村净水工程提供最优质的净水设备。
该设备紧凑合理,采用统一生产标准碳钢基础平台,占地面积小,操作简单方便,出水水质好,运行费用低,稳定可靠,该设备具有以下特点:
结构先进:采用独特的整体预装式微絮凝反应系统,既有效保证反应效果,又无需其他运动部件,安装及维修简便。
过滤精度高:水中悬浮物的去除率可达98%,经良好混凝处理的天然水,其原水浊度不超过3000NTU,过滤出水可达到出水浊度≤1 NTU。
过滤速度快:保证同样出水浊度情况,过滤滤速9~10m/h。
截污容量大:可达到15Kg/m3。
虹吸反冲系统先进:虹吸反冲系统采用多格反冲技术,并结合虹吸反冲自动控制系统,提高反冲洗效果。
占地面积小:同等处理规模设备,占地面积是常规设备的1/2。
吨水造价低:由于DS型一体化净水设备的过滤运行周期长于普通石英砂过滤,吨水耗水量低,且DS型一体化净水设备投加絮凝剂量小,,因此,纤维过滤设备运行吨水造价低。
自耗水量低:反冲耗水量仅为周期制水量的1~3%。
二、 性能参数
(1) 出水水量:30m3/h;50m3/h;80m3/h;100m3/h;150m3/h;200m3/h;250m3/h;其他特殊规格可根据用户实际情况另行设计;
(2) 适用原水浊度:≤3000NTU;
(3) 水温:常温;
(4) 出水浊度:≤1NTU;
(5) 过滤区设计滤速:8~14m/h;
(6) 总停留时间:t总=45~50min;
(7) 运行压力:P≤0.06MPa;
三、 性能优点
(1) 该设备从混合、混凝反应、斜管沉淀、过滤、出水水质监测、反冲、消毒、排泥等一系列系统工作流程均达到了定时运行的效果,可采用全自动控制,或由值班员工根据指定时间监测水质、操作阀门排泥即可。
(2) 高浓度絮凝层能提高原水中杂质颗粒的碰撞、吸附机率,有效提高固体悬浮物的去除效果,在一定的使用条件下,还具有除藻功能。
(3) 泥渣浓缩室及可调式排泥系统能保证多余泥渣及时排除,从而保障了设备稳定运行。
(4) 设备过滤装置可自动反冲洗,无需另外增加反冲水池、反冲水泵、空压机等,可节省基建投资及日常运行费用。
(5) 设备占地面积小,与一般净水构筑物相比,可节约50%的占地面积;设备高度为4.8米,室内室外均可安置。
(6) 设备采用一体化设计,分体安装运输,方便扩建、改造、搬迁或移地再用;
四、技术说明
1. 工艺流程图
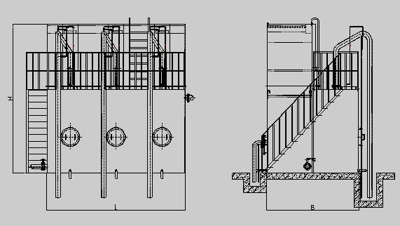
2. 结构及安装示意图
3. 主要技术参数
|
型号 |
净水能力 m3/h |
外形尺寸 L×B×H(mm) |
反应时间 min |
滤速 m/h |
运行压力 MPa |
设备质量 kg |
|
DS-30 |
30 |
2800×2900×4800 |
12 |
8~14 |
0.06 |
17600 |
|
DS-50 |
50 |
4500×3000×4800 |
11.2 |
8~14 |
0.06 |
21000 |
|
DS-60 |
60 |
4800×3200×4800 |
11.2 |
8~14 |
0.06 |
23000 |
|
DS-80 |
80 |
6000×3000×4800 |
11.2 |
8~14 |
0.06 |
25600 |
|
DS-100 |
100 |
6400×3600×4800 |
11.2 |
8~14 |
0.06 |
30100 |
|
DS-150 |
150 |
8000×4200×4800 |
11 |
8~14 |
0.06 |
35280 |
|
DS-200 |
200 |
8800×4500×4800 |
10 |
8~14 |
0.06 |
42100 |
|
DS-250 |
250 |
12000×4500×4800 |
10 |
8~14 |
0.06 |
48600 |
上一个:DS压力式一体化净水设备 下一个:污泥脱水机